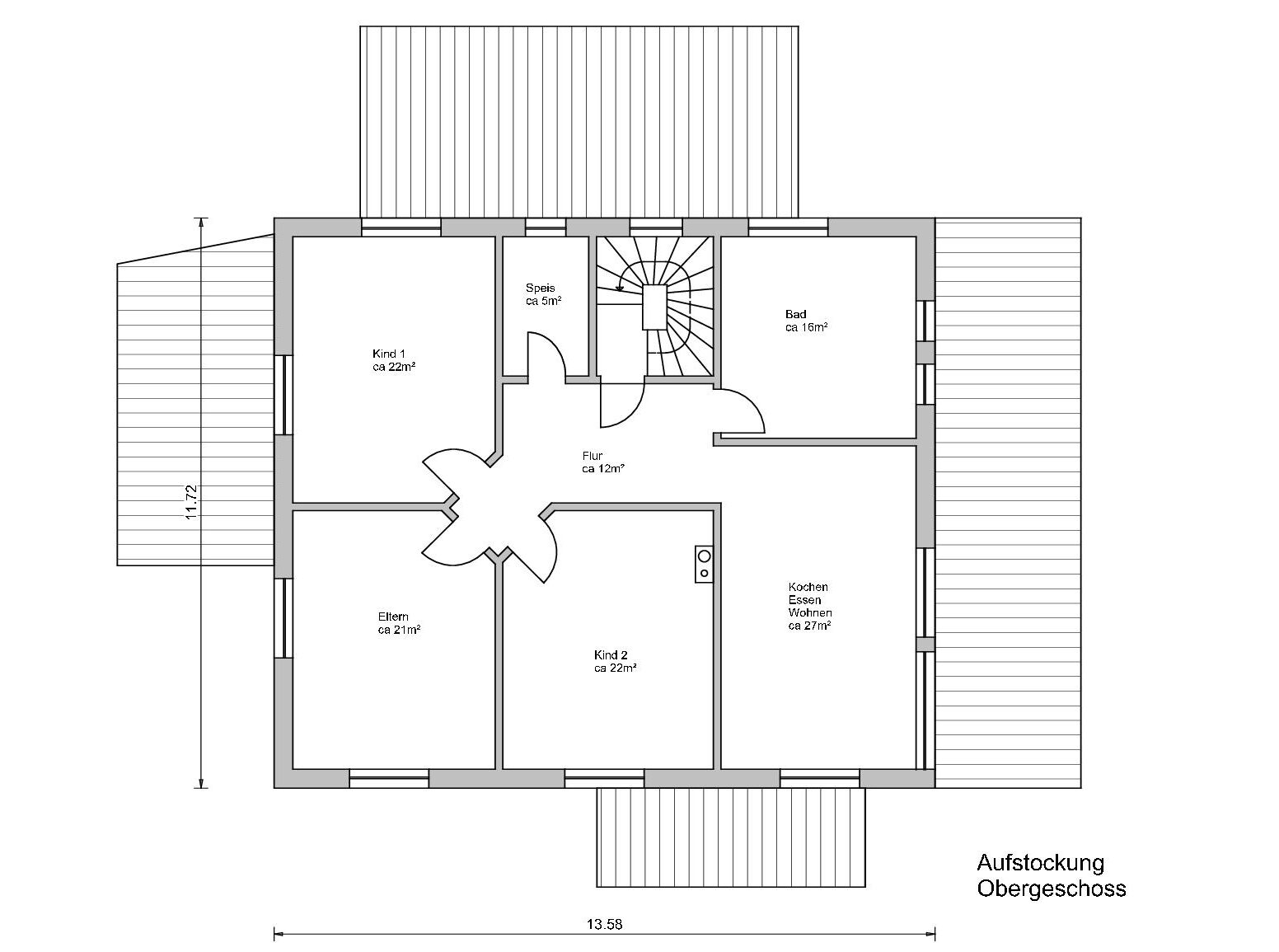
Haus Jobst
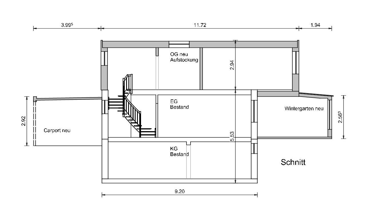
Werfen Sie einen Blick in die Planungsunterlagen:
Baubeginn
Oktober 2025
Fertigstellung
März 2026
Bauweise
Brettsperrholz, Holzständer
Planung
Staudenschreiner - Team mit der Baufamilie
Wohnfläche
159 m²
Nutzfläche
60 m²
Haustechnik
Altbestand
Lüftung
ohne Lüftungsanlage



